Logo der Universität Passau

Kontakt

Briefadresse:

Bei Zusendung von Briefen, Postkarten

Universität Passau
Sprachenzentrum
94030 Passau

Hausanschrift:

Bei Zusendung von Päckchen, Paketen, Postgut, Eilsendungen

Universität Passau
Sprachenzentrum
Innstraße 40
94032 Passau

E-Mail: sprachenzentrum@uni-passau.de
Tel:  +49(0)851/509-1701
Fax: +49(0)851/509-1702

 

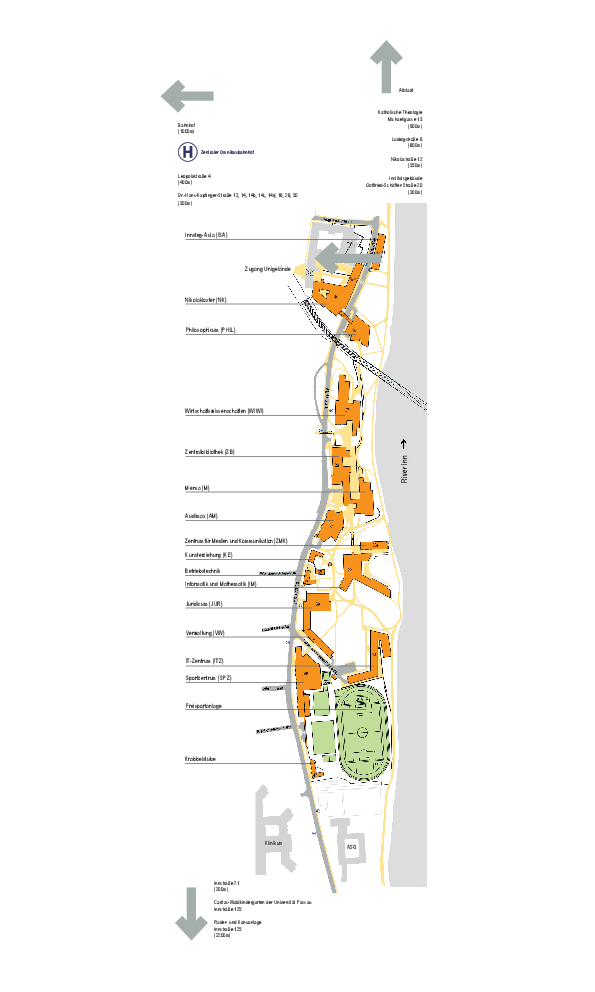
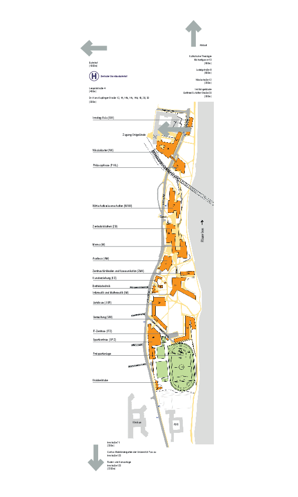
Lageplan und Wegbeschreibung

Das Sekretariat des Sprachenzentrums befindet sich im 4. OG des Nikolaklosters (NK) in der Innstraße 40. Sie erreichen uns vom Klostergarten kommend, wenn Sie durch den Torbogen und rechts durch den Haupteingang des Nikolaklosters gehen. Unmittelbar nach der Pförtnerloge biegen Sie links ab zu den Fahrstühlen.

Ich bin damit einverstanden, dass beim Abspielen des Videos eine Verbindung zum Server von Vimeo hergestellt wird und dabei personenbezogenen Daten (z.B. Ihre IP-Adresse) übermittelt werden.
Ich bin damit einverstanden, dass beim Abspielen des Videos eine Verbindung zum Server von YouTube hergestellt wird und dabei personenbezogenen Daten (z.B. Ihre IP-Adresse) übermittelt werden.
Video anzeigen